找回密码
 注册

便捷登录,只需一步

搜索
潍坊渲彩装饰
查看: 8724|回复: 0

【购房必知】怎样的户型才是好户型?

[复制链接]

116

主题

275

回帖

1059

积分

小学四年级

wfits币
0 个
注册时间
2015-6-8
UID
110066
QQ
发表于 2015-6-14 17:59 | 显示全部楼层 |阅读模式
怎样的户型才是好户型?这种问题看似简单,每个人都可以随口一说,譬如方正、通透、采光好等等。但要仔细深究,不同的人又会给出不同的定义。对户型有疑问的,不妨来看看此文。

首先讲两个概念:
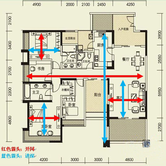
开间、进深:习惯上,我们把房间的主采光面成为开间(面宽),与其垂直的称为进深。也可根据房间门的朝向来确定开间和进深,房门进入的方向的距离为进深,左右两边距离为开间。根据《住宅建筑模数协调标准》(GBJ100-87)规定:住宅建筑的开间常采用下列参数:2.1米、2.4米、2.7米、3.0米、3.3米、3.6米、3.9米、 4.2米。(卧室以床顺着摆放的方向为开间,床头依靠的墙宽度为“进深”,卧室内布置床时,床头一般不靠窗台摆放)

一般意义上的户型方正就是指户型的进深与开间之比合理。进深与开间之比一般介于1:1.5之间较好。进深过大,开间过小,会影响户型采光通风,房间内会显得比较暗;而进深偏小,开间过大不利于房间保温,浪费能源,北方尤其如此。比较方正的户型能做到采光通风与保温两者间的平衡。

一个好的户型,除了户型方正外,还有其他一些原则,主要有:
1.动静分区
2.干湿分区
3.公私分区
4.通透良好
5.动线合理
6.尺寸合理

1.动静分区

动区:客厅、餐厅、厨房、次卫等。
静区:卧室、书房、主卫等。
动区是人们活动较为频繁的区域,应该靠近入户门设置,尤其是厨房;而静区主要供居住者休息,相对比较安静,应当尽量布置在户型内侧。两者分离,一方面使会客、娱乐或者进行家务的人能够放心活动,另一方面也不会过多打扰休息、学习的人,减少相互之间的干扰。详见以下范例:
动静分区合理户型(卧室布置在户型深侧,距离入户门较远)
干湿分区是指厨房、卫生间这两个湿气较重且较容易产生脏污的房间应与卧室等尽量分离。厨房是家居生活中最主要的污染源,噪声、油烟油污、清洗污水等集中于此,因此厨房的布置要尽可能的靠近进户门,远离卧室、客厅;其次厨房与卫生间是住宅中水管的集中地,从施工成本、能源利用、热水器安装等角度考虑,厨房应与一个卫生间贴邻而处。目前市面上的大部分户型还是考虑到了干湿分区,厨房一般也是设置在入户门最近的位置,但仍有少量灾难级户型,户型完全没有考虑厨房应当如何合理布置。

3.公私分区
户型具有私密性的要求,能够适当保护居住者隐私。户型的私密性主要需做到两点:首先在入户门外向户型内望去时,玄关处应当有所遮挡,避免站在门外就能对屋内一览无余;其次是户型内部客厅、餐厅等公共活动空间与卧室等较为私密的空间有视觉上的遮挡,避免在公共区间就能对私密空间一览无余,做到一定程度的“公私分区”。

公私分区较好户型(参见前面讲开间和进深的户型)
公私分区较差户型(卧室门直接开在客厅墙壁上,客厅内可看见卧室大部分)
通透性主要是指户型的通风和采光性能。要保证户型具有良好的通透性能,首先要求户型要有良好的进深开间比,即户型比较方正;其次户型最好有两面可以采光和通风,相对两面采光通风最佳(如南北、东西),其次是相邻两面采光(如东和南、南和西、西和北等),只有一面采光通风效果最差。另外厨房厕所是湿气比较重的两个区域,要尽量做到独立采光通风,也就是避免暗厨暗卫。

通透性最佳——对侧采光通风
通透性次佳——相邻侧采光通风
通透性不佳——单面采光通风
动线是指人们在户内活动的路线,动线流畅与否将影响人们进行各种活动时能否实现顺利转换。户型的设计影响到动线的走向,而动线的走向会影响到居住的品质。好的动线能够提升小户型利用率,而差的动线会使大户型变得“大而无当”,浪费空间。户内主要动线有三类,分别是居住动线、家务动线、来客动线。

动线良好(从入户门进客厅、卧室、厨房的三条线不会交叉)
动线较差户型(进厨房要穿过客厅,进主卧要穿过客厅,客厅都成公共走廊了,另外厨房布置在户型深区,卫生间距离主卧和次卧都很远,且正对大门,该户型堪称灾难级)
地价越来越高,房价越来越高,大户型的高总价让许许多多买房一族难以承受,市场中涌现出越来越多的小户型、超小户型、迷你户型等等,户型的总面积从四五十平米甚至降到十一二平米,较小的面积对应的是较低的总价,小户型日益受到购房者的亲睐,蚁族部落不断壮大。户型朝着小型化方向演进,户型越来越小的同时购房者不免要问:究竟多大的空间尺寸能够满足人们生活的最低限度?(考虑限度主要从家具的尺寸出发,从电视机、床、柜子等的长宽高推导最低尺寸要求,这里就不细说了)
户型不能过小,那是不是越大越好呢?不是的,卧室、客厅等超过了一定空间尺度反而会造成空旷感,降低居住者的舒适度。

说几个主要的尺寸:
客厅开间不宜小于3.6米。
主卧一般采用3.3×3.6、3.6×3.9.3.9×4.2或4.5等几个尺寸,最小不得小于3.0×3.3。
次卧一般采用3.0×3.3、3.3×3.6。
书房可以比次卧更小一点,面积6-10㎡就可以,进深开间要求没那么高。
厨房净长不宜小于2.1米,净宽不宜小于1.5米。
卫生间一般4平米左右,尺寸多为2×2、1.8×2.2。
阳台、玄关等等就不细说了。
每个人跟每个人的情况不一样,所以定义的风格,或者装修的方式都有差异,所以,如果您要装修,随时咨询我们,我会安排最合适您的设计师为您专属打造适合您家的装修风格及装修方式。潍坊城市人家整体家装体验馆竭诚为您服务。
直接回复:“姓名+小区+联系方式”,城市人家装饰将会尽快与您取得联系,为您家安排合适的设计师
我们一直全心全意为您服务!





回复

使用道具 举报

您需要登录后才可以回帖 登录 | 注册

本版积分规则

Archiver|手机版|小黑屋|投诉举报|客服微信号:ppm0536|今潍网-潍坊论坛 ( 鲁ICP备14032312号 )

GMT+8, 2025-11-27 23:17 , Processed in 0.078450 second(s), 25 queries , Gzip On.

快速回复 返回顶部 返回列表